- ホーム
- 新築一戸建てをエリアから探す
- 羽村市
- 緑ヶ丘
- 羽村緑ヶ丘全9棟
新築一戸建て

羽村緑ヶ丘全9棟
情報更新日:2026/04/10 次回更新予定日:2026/04/23 取引条件有効期限:2026/04/23
所在地東京都羽村市緑ヶ丘4丁目[周辺地図]
交 通青梅線「羽村」駅徒歩22分






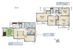
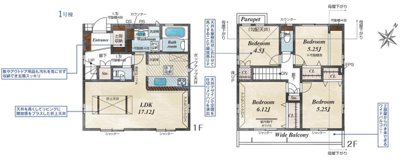
LDKは広々17帖越え!玄関すっきり土間収納付き!洗濯物がたくさん干せるワイドバルコニー!
物件詳細情報
物件No.20000445365
| 所在地 | 東京都羽村市緑ヶ丘4丁目 | ||
|---|---|---|---|
| 交通 | 青梅線「羽村」駅徒歩22分 | ||
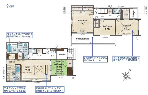
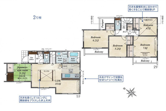
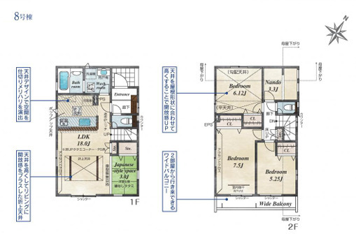
| 間取 | 3LDK~5LDK (LDK17.12帖、洋室6.12帖、洋室5.25帖、洋室5.25帖、洋室4.5帖) | ||
| 土地面積 | 116.86m² ~ 131.51m² 実測 | ||
| 建物面積 | 90.31m² ~ 104.43m² 実測 | ||
| 販売戸数 | 9戸 | 構造・規模 | 木造 2階建て |
| 築年・入居 | 2026年3月 | バルコニー | 南東向き |
| 建物現況 | 建築中 | 建築確認番号 | 第R07SHC121938号、他 |
| 駐車スペース | 2台 | 引渡時期 | 相談 |
| 国土法届出 | 不要 | 地目 | 畑 |
| 用途地域 | 第一種低層住居専用地域 | 建ぺい率 | 50% |
| 容積率 | 100% | 都市計画 | 市街化区域 |
| 権利種類 | 所有権 | 接道 | 北西側6M公道に接道 |
| 小学校区 | 栄小学校(600m) | 中学校区 | 羽村第二中学校(1440m) |
| 取引態様 | 媒介 | ||
| 設備 | 本下水、個別LPG 個別プロパン 公営水道 公共下水 公共下水 前道6m以上 階建 2階建 部屋向き 南東向き LDK広さ 15帖以上 上水道 公営 汚水 下水道 ガス 個別プロパン 駐車可能台数 2台可 クローゼット シューズボックス シューズインクローゼット 床下収納 システムキッチン 食器洗乾燥機 浴室暖房 浴室乾燥機 トイレ2ヶ所 温水洗浄便座 小学校 徒歩10分以内 |
||
| 備考・制限等 | 接道状況:一方 | ||
こだわり項目
角地LDK15帖以上床下収納食器洗浄機システムキッチントイレ2ヶ所温水洗浄便座浴室乾燥機浴室暖房ウォークインクローゼットシューズインクローゼット小学校800m以内保育園・幼稚園800m以内コンビニ400m以内
- ※価格は物件の代金総額を表示しており、消費税が課税される場合は税込み価格です。(1,000円未満は切り上げ。)
税率は引き渡し時期により異なりますので、各物件の詳細につきましてはお問い合わせください。 - ※敷地権利が借地権のものは価格に権利金を含みます。
- ※制作中に内容が変更される場合もありますので、あらかじめご了承ください。
- ※購入の前には物件内容や契約条件についてご自身で十分な確認をしていただくようにお願いいたします。
- ※完成予想図はいずれも外構、植栽、外観等実際のものとは多少異なることがあります。
- ※CG合成の画像の場合、実際とは多少異なる場合があります。
周辺地図
周辺施設一覧
- ショッピングセンター
- スーパー
- コンビニ
- ドラッグストア
- ホームセンター
- 飲食店
- その他店舗
- 商店街
- 大学
- 専門学校
- 高校・高専
- 中学校
- 小学校
- 保育園
- 幼稚園
- 公民館・児童館
- 病院
- 郵便局
- 役所
- 図書館
- 金融機関
- 警察・消防
- 趣味・娯楽施設
- 公園・運動施設
- 周辺の街並み
- 駅
- その他
お問い合せ先
- センチュリー21 ウイングホーム
- お電話でのお問い合わせは
0120-910-918「ホームページを見た」とお問い合わせください - 東京都羽村市川崎1-2-11
- 営業時間:9:00~19:00
- 定休日:毎週水曜日
- 免許番号:東京都知事免許(4)第91845号















