- ホーム
- 中古住宅をエリアから探す
- あきる野市
- 草花
- 中古 あきる野市草花






すべての画像
外観 南向きで陽当り良好です。
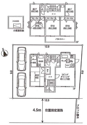
間取り
リビング キッチンまで一つにつながる開放感。
リビング 居心地のよいリビング。陽当り良好です。
キッチン 勝手口があるので買い物した物を直接運び込むことができます。
玄関 たっぷり収納できるシューズボックスを備えた玄関内。
洗面台・洗面所 たっぷり収納できる洗面台。備品をすっきりさせることで生活感が出にくくなります。明るさを取り込む窓付きです。
バス 1日の疲れをゆっくりと癒すバスルーム。
トイレ 1階トイレ。お手洗いは温水洗浄便座です。
和室 柔らかな光が注ぐ和室。畳は日々の暮らしに落ち着きと癒しを与えます。
和室 押し入れのある和室。寝具など収納できます。
洋室 5.25帖のお部屋。グルニエがあるので季節物などかさばる物の収納に便利です。
収納 グルニエ内の様子
玄関 玄関外の様子です。親子ドアなので大きな物の搬出入に便利です。
寝室 バルコニーに面した明るい5.25帖洋室
収納 全居室収納付きです。写真は東側5.25帖洋室
バルコニー 二部屋から出入り可能なバルコニー。
現地からの眺望 現地バルコニーからの眺望
区画図
前面道路含む現地写真 交通量の少ない道路に面しています。
駐車場 カースペース2台です。
前面道路含む現地写真 交通量の少ない道路に面しています。
玄関 たっぷり収納できるシューズボックスを備えた玄関内。
リビング リビングにはエアコン付きです。
物件詳細情報
物件No.30000745780
| 所在地 | 東京都あきる野市草花 | ||
|---|---|---|---|
| 交通 | 青梅線「福生」駅バス12分 バス停「あきる野市民球場」停歩8分 | ||
| 間取 | 4SLDK | ||
| 土地面積 | 124.98m² 公簿 | ||
| 建物面積 | 98.84m² | ||
| 構造・規模 | 木造 2階建て | 築年月 | 1997年8月築 |
| 国土法届出 | 不要 | 地目 | 宅地 |
| 用途地域 | 第一種低層住居専用地域 | 建ぺい率 | 40% |
| 容積率 | 80% | 都市計画 | 市街化区域 |
| 駐車スペース | 2台 | 現況 | 空家 |
| 引渡時期 | 相談 | 権利種類 | 所有権 |
| 接道 | 南側4.5M私道に接道 | 小学校区 | 多西小学校(300m) |
| 中学校区 | 御堂中学校(700m) | 取引態様 | 一般 |
| 設備 | 本下水 公営水道 公共下水 公共下水 南側道路面す 階建 2階建 部屋向き 全室南向き 日当り良好 通風良好 和室 オール電化 上水道 公営 汚水 下水道 フローリング 出窓 駐車可能台数 2台可 収納スペース 納戸 クローゼット シューズボックス 床下収納 屋根裏収納 システムキッチン IHクッキングヒーター グリル シャワー 浴室に窓 トイレ2ヶ所 温水洗浄便座 バルコニー バルコニー有 TVインターホン 小学校 徒歩10分以内 |
||
| 備考・制限等 | 接道状況:一方 | ||
こだわり項目
南側道路南向き全室南向き床下収納小屋裏収納出窓オール電化IHクッキングヒーター浴室に窓TVモニタ付インターホントイレ2ヶ所温水洗浄便座システムキッチン陽当り良好通風良好
- ※価格は物件の代金総額を表示しており、消費税が課税される場合は税込み価格です。(1,000円未満は切り上げ。)
税率は引き渡し時期により異なりますので、各物件の詳細につきましてはお問い合わせください。 - ※敷地権利が借地権のものは価格に権利金を含みます。
- ※制作中に内容が変更される場合もありますので、あらかじめご了承ください。
- ※購入の前には物件内容や契約条件についてご自身で十分な確認をしていただくようにお願いいたします。
- ※完成予想図はいずれも外構、植栽、外観等実際のものとは多少異なることがあります。
- ※CG合成の画像の場合、実際とは多少異なる場合があります。
周辺地図
周辺施設一覧
- ショッピングセンター
- スーパー
- コンビニ
- ドラッグストア
- ホームセンター
- 飲食店
- その他店舗
- 商店街
- 大学
- 専門学校
- 高校・高専
- 中学校
- 小学校
- 保育園
- 幼稚園
- 公民館・児童館
- 病院
- 郵便局
- 役所
- 図書館
- 金融機関
- 警察・消防
- 趣味・娯楽施設
- 公園・運動施設
- 周辺の街並み
- 駅
- その他
お問い合せ先
- センチュリー21 ウイングホーム
- お電話でのお問い合わせは
0120-910-918「ホームページを見た」とお問い合わせください - 東京都羽村市川崎1-2-11
- 営業時間:9:00~19:00
- 定休日:毎週水曜日
- 免許番号:東京都知事免許(4)第91845号
- ホーム
- 中古住宅をエリアから探す
- あきる野市
- 草花
- 中古 あきる野市草花

















