- ホーム
- 新築一戸建てをエリアから探す
- 福生市
- 大字熊川
- リーブルガーデン福生熊川第六全1棟1号棟
リーブルガーデン福生熊川第六全1棟1号棟
情報更新日:2026/04/28 次回更新予定日:2026/05/12
所在地東京都福生市大字熊川[周辺地図]
交 通青梅線「拝島」駅徒歩14分






■家族を身近に感じるリビング階段
■全居室収納付で広々住空間
すべての画像
外観 黒を基調としたスタイリッシュな外観。
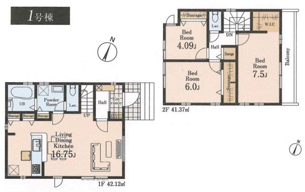
間取り
リビング キッチンまで一つにつながる開放感。16.75帖です。
リビング 南向きの居心地の良いリビング。
キッチン 家事をしながらコミュニケーションが取れる対面式キッチン。
リビング 収納豊富で使い勝手の良いキッチン
玄関 窓のある明るい玄関内。たっぷり収納できるシューズボックスを備えています。
玄関 シューズボックスの他にコート類も収納できるスペースを備えた玄関内。
洗面台・洗面所 三面鏡付きの洗面台です。鏡裏にも収納可能。
バス 1日の疲れをゆっくりと癒すバスルーム。浴室換気乾燥機つきなので、入浴後の換気だけでなく衣類の乾燥にも重宝します。換気に便利な窓付きです。
トイレ 立ち上がりに便利な手すり付きのトイレ。温水洗浄便座です。
寝室 バルコニーに面した主寝室におすすめの7.5帖洋室。
寝室 主寝室はW.I.C付き。かさばる物も収納できるので室内がすっきり片付きます。
収納 洗剤やリネン類の保管に便利な洗面室のストレージ
バルコニー 洗濯物がたくさん干せるバルコニー
現地からの眺望 現地バルコニーからの眺望。
その他内観 階段には手すりがついているので昇り降りが安心です。窓から明るい光が差し込みます。
前面道路含む現地写真 カースペース2台です。
前面道路含む現地写真 車の出し入れしやすい前面道路
区画図
前面道路含む現地写真 交通量の少ない道路に面しています。
玄関 玄関外の様子です。モニターカメラ付きのインターホンで訪問者が確認できます。
リビング ご家族のコミュニケーションの機会が増えるリビング階段。
キッチン 換気に便利な窓があるキッチン。床下収納付きです。
物件詳細情報
物件No.30000747441
| 所在地 | 東京都福生市大字熊川 | ||
|---|---|---|---|
| 交通 | 青梅線「拝島」駅徒歩14分 五日市線「熊川」駅徒歩8分 |
||
| 間取 | 3LDK (LDK16.75帖、洋室7.5帖、洋室6帖、洋室4.09帖) | ||
| 土地面積 | 104.44m² 実測 | ||
| 建物面積 | 83.49m² 実測 | ||
| 構造・規模 | 木造 2階建て | 築年・入居 | 2026年2月 |
| バルコニー | 東向き | 建物現況 | 完成済 |
| 建築確認番号 | 第25UDI1W建08508号 | 駐車スペース | 2台 |
| 引渡時期 | 相談 | 国土法届出 | 不要 |
| 地目 | 宅地 | 用途地域 | 第一種低層住居専用地域 |
| 建ぺい率 | 40% | 容積率 | 80% |
| 都市計画 | 市街化区域 | 権利種類 | 所有権 |
| 接道 | 北東側6.07M公道に接道 南東側4.94M公道に接道 |
小学校区 | 福生第三小学校(1000m) |
| 中学校区 | 福生第一中学校(600m) | 取引態様 | 媒介 |
| 設備 | 本下水 都市ガス 公営水道 公共下水 公共下水 前道6m以上 2沿線以上利用可 階建 2階建 LDK広さ 15帖以上 上水道 公営 汚水 下水道 ガス 都市ガス 駐車可能台数 2台可 24時間換気システム 全居室収納 収納スペース クローゼット ウォークインクローゼット シューズボックス 床下収納 浄水器 シャンプードレッサー 浴室乾燥機 トイレ2ヶ所 温水洗浄便座 バルコニー バルコニー有 人感センサー付照明 TVインターホン |
||
| 備考・制限等 | 接道状況:二方 | ||
こだわり項目
- ※価格は物件の代金総額を表示しており、消費税が課税される場合は税込み価格です。(1,000円未満は切り上げ。)
税率は引き渡し時期により異なりますので、各物件の詳細につきましてはお問い合わせください。 - ※敷地権利が借地権のものは価格に権利金を含みます。
- ※制作中に内容が変更される場合もありますので、あらかじめご了承ください。
- ※購入の前には物件内容や契約条件についてご自身で十分な確認をしていただくようにお願いいたします。
- ※完成予想図はいずれも外構、植栽、外観等実際のものとは多少異なることがあります。
- ※CG合成の画像の場合、実際とは多少異なる場合があります。
周辺地図
周辺施設一覧
- ショッピングセンター
- スーパー
- コンビニ
- ドラッグストア
- ホームセンター
- 飲食店
- その他店舗
- 商店街
- 大学
- 専門学校
- 高校・高専
- 中学校
- 小学校
- 保育園
- 幼稚園
- 公民館・児童館
- 病院
- 郵便局
- 役所
- 図書館
- 金融機関
- 警察・消防
- 趣味・娯楽施設
- 公園・運動施設
- 周辺の街並み
- 駅
- その他
お問い合せ先
- センチュリー21 ウイングホーム
- お電話でのお問い合わせは
0120-910-918「ホームページを見た」とお問い合わせください - 東京都羽村市川崎1-2-11
- 営業時間:9:00~19:00
- 定休日:毎週水曜日
- 免許番号:東京都知事免許(4)第91845号
- ホーム
- 新築一戸建てをエリアから探す
- 福生市
- 大字熊川
- リーブルガーデン福生熊川第六全1棟1号棟















