- ホーム
- 中古住宅をエリアから探す
- 青梅市
- 新町
- 中古 青梅市新町8丁目






■全室南向きの明るい住まい
■スーパー・コンビニが徒歩圏内
■駐車1台可能、カーポート付き
■スーパー・コンビニが徒歩圏内
■駐車1台可能、カーポート付き
物件詳細情報
物件No.30000748872
| 所在地 | 東京都青梅市新町8丁目 | ||
|---|---|---|---|
| 交通 | 青梅線「小作」駅徒歩20分 | ||
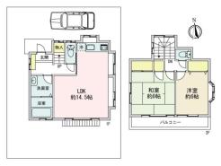
| 間取 | 2LDK (LDK14.5帖、和室8帖、洋室6帖) | ||
| 土地面積 | 100.53m² 公簿 | ||
| 建物面積 | 73.27m² | ||
| 構造・規模 | 木造 2階建て | 築年月 | 1990年9月築 |
| バルコニー | 南向き | 国土法届出 | 不要 |
| 地目 | 宅地 | 用途地域 | 工業地域 |
| 建ぺい率 | 60% | 容積率 | 200% |
| 都市計画 | 市街化区域 | 駐車スペース | 1台 |
| 現況 | 居住中 | 引渡時期 | 相談 |
| 権利種類 | 所有権 | 接道 | 西側6M私道に2M接道 |
| 小学校区 | 新町小学校(960m) | 中学校区 | 新町中学校(1120m) |
| 取引態様 | 専任媒介 | ||
| 設備 | 本下水 都市ガス 公営水道 公共下水 公共下水 階建 2階建 部屋向き 南向き 全居室6帖以上 和室 上水道 公営 汚水 下水道 ガス 都市ガス 収納スペース クローゼット シューズボックス バルコニー バルコニー有 南面バルコニー スーパー 徒歩10分以内 |
||
| 備考・制限等 | 接道状況:一方 | ||
こだわり項目
南向き
- ※価格は物件の代金総額を表示しており、消費税が課税される場合は税込み価格です。(1,000円未満は切り上げ。)
税率は引き渡し時期により異なりますので、各物件の詳細につきましてはお問い合わせください。 - ※敷地権利が借地権のものは価格に権利金を含みます。
- ※制作中に内容が変更される場合もありますので、あらかじめご了承ください。
- ※購入の前には物件内容や契約条件についてご自身で十分な確認をしていただくようにお願いいたします。
- ※完成予想図はいずれも外構、植栽、外観等実際のものとは多少異なることがあります。
- ※CG合成の画像の場合、実際とは多少異なる場合があります。
周辺地図
周辺施設一覧
- ショッピングセンター
- スーパー
- コンビニ
- ドラッグストア
- ホームセンター
- 飲食店
- その他店舗
- 商店街
- 大学
- 専門学校
- 高校・高専
- 中学校
- 小学校
- 保育園
- 幼稚園
- 公民館・児童館
- 病院
- 郵便局
- 役所
- 図書館
- 金融機関
- 警察・消防
- 趣味・娯楽施設
- 公園・運動施設
- 周辺の街並み
- 駅
- その他
お問い合せ先
- センチュリー21 ウイングホーム
- お電話でのお問い合わせは
0120-910-918「ホームページを見た」とお問い合わせください - 東京都羽村市川崎1-2-11
- 営業時間:9:00~19:00
- 定休日:毎週水曜日
- 免許番号:東京都知事免許(4)第91845号
- ホーム
- 中古住宅をエリアから探す
- 青梅市
- 新町
- 中古 青梅市新町8丁目















