- ホーム
- 新築一戸建てをエリアから探す
- あきる野市
- 二宮
- あきる野市二宮9期全1棟






東秋留駅まで徒歩約4分!電車で通勤通学するご家庭にお勧めの物件です!
物件詳細情報
物件No.30000751573
| 所在地 | 東京都あきる野市二宮 | ||
|---|---|---|---|
| 交通 | 五日市線「東秋留」駅徒歩4分 | ||
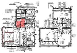
| 間取 | 3LDK | ||
| 土地面積 | 89.29m² 公簿 | ||
| 建物面積 | 71.21m² | ||
| 構造・規模 | 木造 2階建て | 築年・入居 | 2026年9月 |
| 建物現況 | 建築中 | 建築確認番号 | TKK確済25-1041号 |
| 引渡時期 | 相談 | 国土法届出 | 不要 |
| 地目 | 宅地 | 用途地域 | 第一種低層住居専用地域 |
| 建ぺい率 | 50% | 容積率 | 80% |
| 都市計画 | 市街化区域 | 権利種類 | 所有権 |
| 接道 | 北側4.5M道路に接道 | 小学校区 | 東秋留小学校(800m) |
| 中学校区 | 東中学校(1300m) | 取引態様 | 媒介 |
| 設備 | 本下水、個別LPG 個別プロパン 公営水道 公共下水 公共下水 整形地 閑静な住宅地 階建 2階建 部屋向き 南向き 通風良好 電気 上水道 公営 汚水 下水道 ガス 個別プロパン フローリング 全居室収納 収納スペース クローゼット 床下収納 システムキッチン カウンターキッチン ガスコンロ グリル 独立洗面台 シャンプードレッサー オートバス 追い焚き シャワー トイレ2ヶ所 温水洗浄便座 バルコニー バルコニー有 南面バルコニー TVインターホン ディンプルキー |
||
| 備考・制限等 | 接道状況:一方 法令制限等:高度地区 景観法 航空法 |
||
こだわり項目
整形地閑静な住宅地南向き床下収納全居室収納TVモニタ付インターホントイレ2ヶ所温水洗浄便座システムキッチンカウンターキッチン追焚機能オートバス通風良好
- ※価格は物件の代金総額を表示しており、消費税が課税される場合は税込み価格です。(1,000円未満は切り上げ。)
税率は引き渡し時期により異なりますので、各物件の詳細につきましてはお問い合わせください。 - ※敷地権利が借地権のものは価格に権利金を含みます。
- ※制作中に内容が変更される場合もありますので、あらかじめご了承ください。
- ※購入の前には物件内容や契約条件についてご自身で十分な確認をしていただくようにお願いいたします。
- ※完成予想図はいずれも外構、植栽、外観等実際のものとは多少異なることがあります。
- ※CG合成の画像の場合、実際とは多少異なる場合があります。
周辺地図
周辺施設一覧
- ショッピングセンター
- スーパー
- コンビニ
- ドラッグストア
- ホームセンター
- 飲食店
- その他店舗
- 商店街
- 大学
- 専門学校
- 高校・高専
- 中学校
- 小学校
- 保育園
- 幼稚園
- 公民館・児童館
- 病院
- 郵便局
- 役所
- 図書館
- 金融機関
- 警察・消防
- 趣味・娯楽施設
- 公園・運動施設
- 周辺の街並み
- 駅
- その他
お問い合せ先
- センチュリー21 ウイングホーム
- お電話でのお問い合わせは
0120-910-918「ホームページを見た」とお問い合わせください - 東京都羽村市川崎1-2-11
- 営業時間:9:00~19:00
- 定休日:毎週水曜日
- 免許番号:東京都知事免許(4)第91845号
- ホーム
- 新築一戸建てをエリアから探す
- あきる野市
- 二宮
- あきる野市二宮9期全1棟

















