- ホーム
- 中古住宅をエリアから探す
- あきる野市
- 上代継
- あきる野市上代継 スウェーデンハウスの中古戸建て
あきる野市上代継 スウェーデンハウスの中古戸建て
情報更新日:2026/01/16 次回更新予定日:2026/01/31
所在地東京都あきる野市上代継[周辺地図]
交 通五日市線「秋川」駅徒歩17分






■木製サッシ3層ガラス窓採用
■ウッドデッキのあるお庭
すべての画像
外観 木のぬくもりが感じられる北欧風住宅。角地につき陽当り・通風両行。
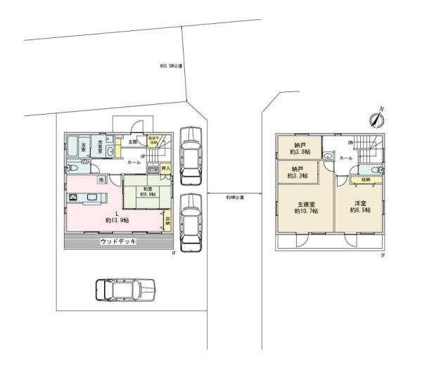
間取り
リビング 隣接した和室と合わせて広々と使えるリビング。
リビング 南向きで日当り良好です。
キッチン 家事をしながらコミュニケーションが取れる対面式キッチン。IHクッキングヒーターです。
キッチン 換気に便利な窓付。背後にも収納があります。
玄関 たっぷり収納できるシューズボックスを備えた玄関内。
洗面台・洗面所 収納豊富な洗面所。備品をすっきりさせることで生活感が出にくくなります。洗濯機スペースもしっかり確保されています。
バス 1日の疲れをゆっくりと癒すバスタブ。手すり付きで安心です。
トイレ 1階トイレ。お手洗いは温水洗浄便座です。収納スペース、手洗い器も添えつけられています。
和室 5.9帖和室。リビングの続き間や独立した空間として、ライフスタイルに合わせて使用できます。
寝室 バルコニーに面した洋室。10.7帖のゆとりある広さで主寝室におすすめです。
収納 たっぷり収納できるウォークインクローゼット。
その他内観 階段には手すりがついているので昇り降りが安心です。
バルコニー 陽当り通風良好のバルコニー。
駐車場 3台駐車可能です。
庭 陽当りが心地よいお庭。ウッドデッキがあります。
収納 季節物やかさばる物の収納に便利な納戸。多目的スペースとしても使用できます。
収納 階段下を利用した玄関収納。
前面道路含む現地写真 前面道路の様子です。
洋室 8.5帖洋室。こちらのお部屋からもバルコニーに出入りできます。
洗面台・洗面所 朝の忙しい時間にうれしい2階洗面台。
トイレ 2階トイレの様子です。
その他 木製サッシ3層ガラス窓。木枠がおしゃれです。
物件詳細情報
物件No.30000746514
| 所在地 | 東京都あきる野市上代継 | ||
|---|---|---|---|
| 交通 | 五日市線「秋川」駅徒歩17分 | ||
| 間取 | 3SLDK | ||
| 土地面積 | 166.06m² 公簿 | ||
| 建物面積 | 115.94m² | ||
| 構造・規模 | 木造 2階建て | 築年月 | 2000年8月築 |
| バルコニー | 南東向き | 国土法届出 | 不要 |
| 地目 | 宅地 | 用途地域 | 無指定地域 |
| 建ぺい率 | 40% | 容積率 | 80% |
| 都市計画 | 市街化調整区域 | 駐車スペース | 3台 |
| 現況 | 空家 | 権利種類 | 所有権 |
| 接道 | 北側5.5M公道に接道 東側4M公道に接道 |
小学校区 | 西秋留小学校(726m) |
| 中学校区 | 西中学校(1572m) | 取引態様 | 一般 |
| 設備 | 本下水 公営水道 公共下水 公共下水 角地 土地広さ 50坪以上 階建 2階建 オール電化 上水道 公営 汚水 下水道 駐車可能台数 3台以上可 収納スペース 納戸 トイレ2ヶ所 温水洗浄便座 バルコニー バルコニー有 小学校 徒歩10分以内 |
||
| 備考・制限等 | 接道状況:二方 駐車場タイプ:カースペース |
||
こだわり項目
- ※価格は物件の代金総額を表示しており、消費税が課税される場合は税込み価格です。(1,000円未満は切り上げ。)
税率は引き渡し時期により異なりますので、各物件の詳細につきましてはお問い合わせください。 - ※敷地権利が借地権のものは価格に権利金を含みます。
- ※制作中に内容が変更される場合もありますので、あらかじめご了承ください。
- ※購入の前には物件内容や契約条件についてご自身で十分な確認をしていただくようにお願いいたします。
- ※完成予想図はいずれも外構、植栽、外観等実際のものとは多少異なることがあります。
- ※CG合成の画像の場合、実際とは多少異なる場合があります。
周辺地図
周辺施設一覧
- ショッピングセンター
- スーパー
- コンビニ
- ドラッグストア
- ホームセンター
- 飲食店
- その他店舗
- 商店街
- 大学
- 専門学校
- 高校・高専
- 中学校
- 小学校
- 保育園
- 幼稚園
- 公民館・児童館
- 病院
- 郵便局
- 役所
- 図書館
- 金融機関
- 警察・消防
- 趣味・娯楽施設
- 公園・運動施設
- 周辺の街並み
- 駅
- その他
お問い合せ先
- センチュリー21 ウイングホーム
- お電話でのお問い合わせは
0120-910-918「ホームページを見た」とお問い合わせください - 東京都羽村市川崎1-2-11
- 営業時間:9:00~19:00
- 定休日:毎週水曜日
- 免許番号:東京都知事免許(4)第91845号
- ホーム
- 中古住宅をエリアから探す
- あきる野市
- 上代継
- あきる野市上代継 スウェーデンハウスの中古戸建て















