





■生活施設が整った便利な住環境
■家族を身近に感じるリビング階段
■全居室収納付
■家族を身近に感じるリビング階段
■全居室収納付
物件詳細情報
物件No.30000749906
| 所在地 | 東京都福生市大字福生 | ||
|---|---|---|---|
| 交通 | 青梅線「牛浜」駅徒歩7分 八高線「東福生」駅徒歩14分 青梅線「福生」駅徒歩16分 |
||
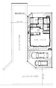
| 間取 | 4LDK (LDK15.7帖、洋室6帖、洋室5.2帖、洋室4.1帖、洋室4.1帖) | ||
| 土地面積 | 105.77m² 実測 | ||
| 建物面積 | 84.04m² 実測 | ||
| 構造・規模 | 木造 2階建て | 築年・入居 | 2026年6月 |
| バルコニー | 南東向き | 建物現況 | 建築中 |
| 建築確認番号 | 第HPA-26-01573-1号 | 駐車スペース | 2台 |
| 引渡時期 | 相談 | 国土法届出 | 不要 |
| 地目 | 宅地 | 用途地域 | 第一種低層住居専用地域 |
| 建ぺい率 | 40% | 容積率 | 80% |
| 都市計画 | 市街化区域 | 権利種類 | 所有権 |
| 接道 | 南東側5M公道に接道 西側4.5M私道に接道 |
小学校区 | 福生第三小学校(400m) |
| 中学校区 | 福生第一中学校(1100m) | 取引態様 | 媒介 |
| 設備 | 角地 階建 2階建 部屋向き 南東向き LDK広さ 15帖以上 駐車可能台数 2台可 リビング階段 全居室収納 収納スペース クローゼット シューズボックス 食器洗乾燥機 トイレ2ヶ所 バルコニー バルコニー有 小学校 徒歩10分以内 | ||
| 備考・制限等 | 接道状況:二方 | ||
こだわり項目
角地全居室収納LDK15帖以上食器洗浄機リビング階段トイレ2ヶ所
- ※価格は物件の代金総額を表示しており、消費税が課税される場合は税込み価格です。(1,000円未満は切り上げ。)
税率は引き渡し時期により異なりますので、各物件の詳細につきましてはお問い合わせください。 - ※敷地権利が借地権のものは価格に権利金を含みます。
- ※制作中に内容が変更される場合もありますので、あらかじめご了承ください。
- ※購入の前には物件内容や契約条件についてご自身で十分な確認をしていただくようにお願いいたします。
- ※完成予想図はいずれも外構、植栽、外観等実際のものとは多少異なることがあります。
- ※CG合成の画像の場合、実際とは多少異なる場合があります。
周辺地図
周辺施設一覧
- ショッピングセンター
- スーパー
- コンビニ
- ドラッグストア
- ホームセンター
- 飲食店
- その他店舗
- 商店街
- 大学
- 専門学校
- 高校・高専
- 中学校
- 小学校
- 保育園
- 幼稚園
- 公民館・児童館
- 病院
- 郵便局
- 役所
- 図書館
- 金融機関
- 警察・消防
- 趣味・娯楽施設
- 公園・運動施設
- 周辺の街並み
- 駅
- その他
お問い合せ先
- センチュリー21 ウイングホーム
- お電話でのお問い合わせは
0120-910-918「ホームページを見た」とお問い合わせください - 東京都羽村市川崎1-2-11
- 営業時間:9:00~19:00
- 定休日:毎週水曜日
- 免許番号:東京都知事免許(4)第91845号



















