- ホーム
- 中古住宅をエリアから探す
- あきる野市
- 草花
- あきる野市草花ブリティッシュタウン






◆2024年外壁塗装工事・シロアリ防除実施。
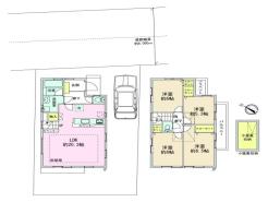
◆リビングは広々とした約20.3帖。
◆2026年4月下旬空室予定。
◆2~3台駐車可能となっております(車種による)。
◆リビングは広々とした約20.3帖。
◆2026年4月下旬空室予定。
◆2~3台駐車可能となっております(車種による)。
すべての画像
外観 2024年塗装工事実施。
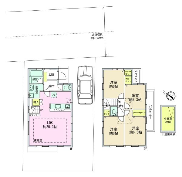
間取り 4LDK+小屋裏収納付き
玄関 すっきりとした玄関まわり。
リビング キッチンまで一つにつながる開放感。約20.3帖です。
リビング ご家族のコミュニケーションの機会が増えるリビング。
キッチン 使いやすいシンク。
キッチン
収納 リビング階段下収納
洗面台・洗面所 洗濯機スペースもしっかり確保されています。
洗面台・洗面所 洗濯機置き場の様子。
バス 1日の疲れをゆっくりと癒すバスルーム。
バス 浴室内の様子。
トイレ トイレの様子。
トイレ 温水洗浄機能付きです。
その他内観 階段の様子です
洋室 南側洋室約6.5帖
収納 南側洋室約6.5帖クローゼット
洋室 西側洋室約6.0帖
収納 西側洋室約6.0帖クローゼット
洋室 北側洋室約6.0帖
収納 北側洋室約6.0帖クローゼット
洋室 東側洋室約5.3帖
収納 東側洋室約5.3帖クローゼット
バルコニー バルコニーの様子。
物件詳細情報
物件No.30000750234
| 所在地 | 東京都あきる野市草花 | ||
|---|---|---|---|
| 交通 | 青梅線「福生」駅徒歩21分 | ||
| 間取 | 4LDK | ||
| 土地面積 | 120.09m² 公簿 | ||
| 建物面積 | 95.58m² | ||
| 構造・規模 | 木造 2階建て | 築年月 | 2008年8月築 |
| 国土法届出 | 不要 | 地目 | 宅地 |
| 用途地域 | 無指定地域 | 建ぺい率 | 40% |
| 容積率 | 80% | 都市計画 | 市街化調整区域 |
| 駐車スペース | 2台 | 現況 | 空家 |
| 引渡時期 | 相談 | 権利種類 | 所有権 |
| 接道 | 東側6M公道に8.7M接道 | 小学校区 | 草花小学校(1592m) |
| 中学校区 | 御堂中学校(2393m) | 取引態様 | 専任媒介 |
| リフォーム |
|
||
| 設備 | 本下水、集中LPG 集中プロパン 公営水道 公共下水 公共下水 開発分譲地内 前道6m以上 LDK広さ 20帖以上 グルニエ 上水道 公営 汚水 下水道 ガス 集中プロパン 全居室収納 床下収納 IHクッキングヒーター |
||
| 備考・制限等 | 接道状況:一方 地勢:平坦 予定なし 法令制限等:景観法 航空法 |
||
こだわり項目
区画整理及び分譲地平坦地床下収納全居室収納小屋裏収納IHクッキングヒーター
- ※価格は物件の代金総額を表示しており、消費税が課税される場合は税込み価格です。(1,000円未満は切り上げ。)
税率は引き渡し時期により異なりますので、各物件の詳細につきましてはお問い合わせください。 - ※敷地権利が借地権のものは価格に権利金を含みます。
- ※制作中に内容が変更される場合もありますので、あらかじめご了承ください。
- ※購入の前には物件内容や契約条件についてご自身で十分な確認をしていただくようにお願いいたします。
- ※完成予想図はいずれも外構、植栽、外観等実際のものとは多少異なることがあります。
- ※CG合成の画像の場合、実際とは多少異なる場合があります。
周辺地図
周辺施設一覧
- ショッピングセンター
- スーパー
- コンビニ
- ドラッグストア
- ホームセンター
- 飲食店
- その他店舗
- 商店街
- 大学
- 専門学校
- 高校・高専
- 中学校
- 小学校
- 保育園
- 幼稚園
- 公民館・児童館
- 病院
- 郵便局
- 役所
- 図書館
- 金融機関
- 警察・消防
- 趣味・娯楽施設
- 公園・運動施設
- 周辺の街並み
- 駅
- その他
お問い合せ先
- センチュリー21 ウイングホーム
- お電話でのお問い合わせは
0120-910-918「ホームページを見た」とお問い合わせください - 東京都羽村市川崎1-2-11
- 営業時間:9:00~19:00
- 定休日:毎週水曜日
- 免許番号:東京都知事免許(4)第91845号
- ホーム
- 中古住宅をエリアから探す
- あきる野市
- 草花
- あきる野市草花ブリティッシュタウン















